Хочу посмотреть
Предложить цену
Праймброком
8 (915) 086-4035
Описание
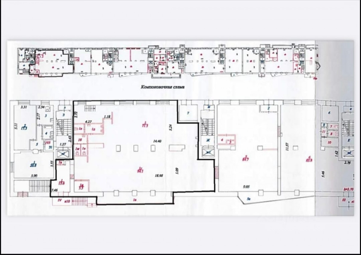
В аренду предлагается помещение свободного назначения, площадью 207 м2. 1-я линия проспекта Вернадского. 1-й этаж. Отдельный вход. Витринные окна. Зальная планировка. Электричество 30кВт(с возможностью увеличения). Каникулы предоставляются. Автомобильный и пешеходный трафик. До метро 5 мин. пешком. Стоимость аренды 600 000 рублей в месяц, Оперативный показ и выход на сделку.
Дата размещения: 20.10.2025
Другие объекты
A PHP Error was encountered
Severity: Warning
Message: Invalid argument supplied for foreach()
Filename: search/RD_ad_page_tpl.php
Line Number: 356
Backtrace:
File: /var/www/primebro_com_usr/data/www/primebro.com/application/views/_redesign/search/RD_ad_page_tpl.php
Line: 356
Function: _error_handler
File: /var/www/primebro_com_usr/data/www/primebro.com/application/controllers/Search.php
Line: 402
Function: view
File: /var/www/primebro_com_usr/data/www/primebro.com/index.php
Line: 343
Function: require_once