Хочу посмотреть
Предложить цену
Описание
Аренда офисов в новом МФЦ в 350м от м.Нагорная.
ТТК –3 км., удобный доступ с Варшавского ш., Севастопольского и Нахимовского проспектов.
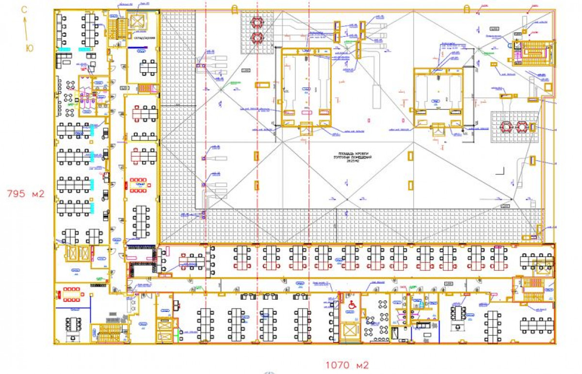
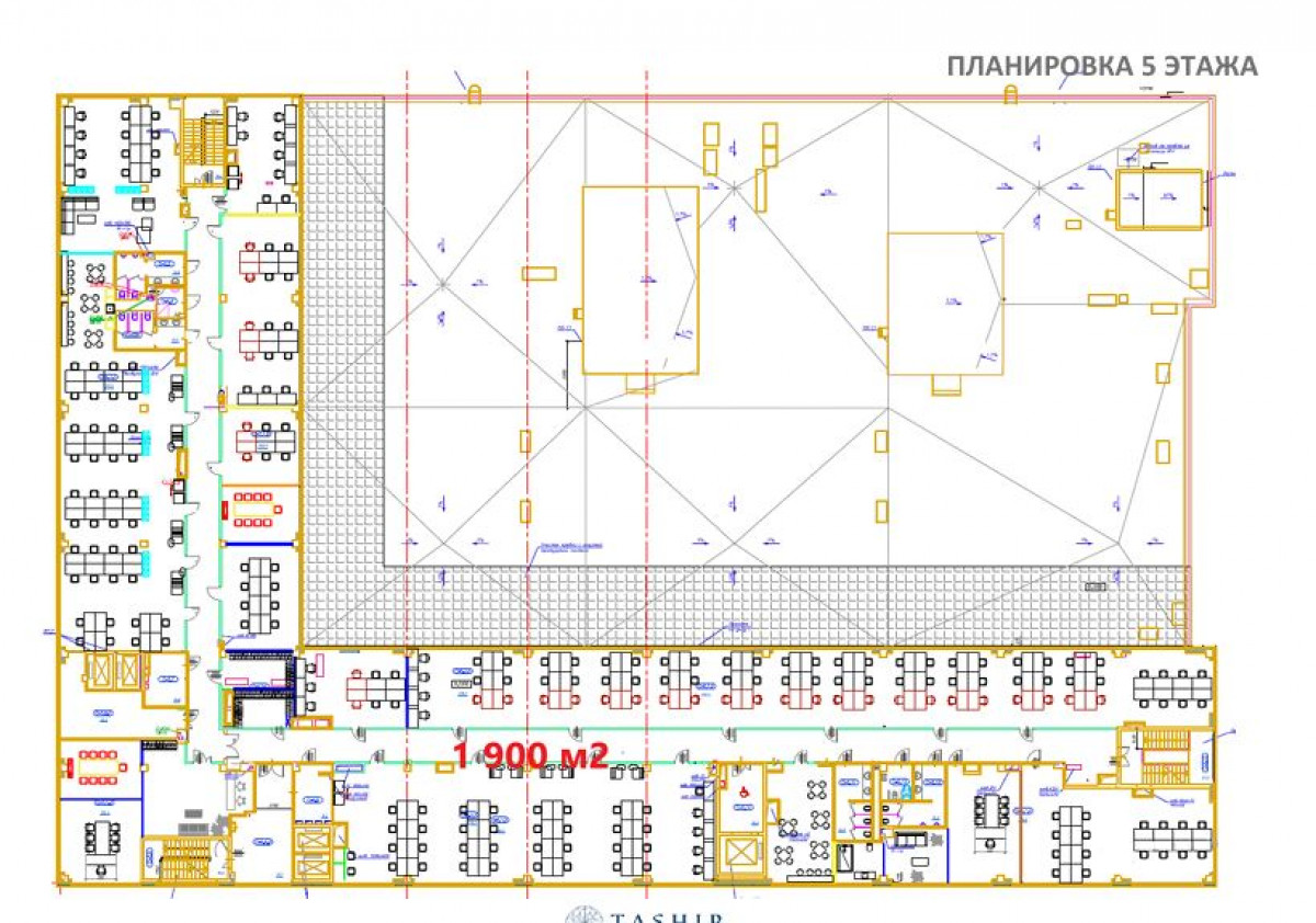
МФЦ - 6-ти этажное здание переменной этажности с подземным паркингом и наземной гостевой парковкой.
Офисная часть - 6 780м2:
3 этаж – 1 215 м2 , 4 этаж – 1 865 м2, 5 этаж – 1 900 м2, 6 этаж – 1 800 м2
Высота потолков: 1-2 этажи – 4,95 м., 3-6 этажи -3,6м.;
Парковка: 275 м/мест (парковочный коэффициент 1:25;
Центральная система приточно-вытяжной вентиляции с фильтрацией,
центральная система холодоснабжения, система естественного проветривания офисов;
8 лифтов грузоподъемностью от 1000 до 2000 кг.
Возможные форматы отделки офисных блоков: с базовой отделкой.
Инфраструктура центра - отделение банка, фудхолл, гастропаб, кафе и рестораны, фитнес центр, салоны красоты, магазины, аптеки, банкоматы.
Блоки от 585 м2 до 6 780 м2
Ставка аренды за 1 м2 в год – 35 000 рублей, кроме того
НДС по действующей ставке
Эксплуатация – включена в ставку аренды
Депозит – 2 месяца. Срок договора –3 года
Индексация – ИПЦ, не менее 5% и не более 10%.
Арендные каникулы.
Дата размещения: 16.01.2026
Другие объекты
A PHP Error was encountered
Severity: Warning
Message: Invalid argument supplied for foreach()
Filename: search/RD_ad_page_tpl.php
Line Number: 356
Backtrace:
File: /var/www/primebro_com_usr/data/www/primebro.com/application/views/_redesign/search/RD_ad_page_tpl.php
Line: 356
Function: _error_handler
File: /var/www/primebro_com_usr/data/www/primebro.com/application/controllers/Search.php
Line: 402
Function: view
File: /var/www/primebro_com_usr/data/www/primebro.com/index.php
Line: 343
Function: require_once