50 000 000 ₽
Категория
Торговая площадь
Хочу посмотреть
Предложить цену
Анастасия
8 (925) 191-1912
Описание
Продаётся ГАБ «Магнит Косметик»
МАП - 450 000
ГАП - 5 400 000
Окупаемость - 9 лет без индексации
Объект расположен рядом с крупнейшим автомобильным рынком "Южный Порт", на первой линии улицы Трофимова в шаговой доступности от метро Кожуховская, на цокольном этаже одноэтажного встроено- пристроенного здания.
Густонаселенный район, отличная видимость с дороги.
Высокий пешеходный и автомобильный трафик, очень оживлённое место, парковка непосредственно около объекта, остановка общественного транспорта.
Все коммуникации центральные ( гор/хол вода, санузел, приточная вытяжка)
Отдельный вход, доступ 24/7
Вид сделки: Прямая продажа от собственника.
ОСНОВНЫЕ ХАРАКТЕРИСТИКИ
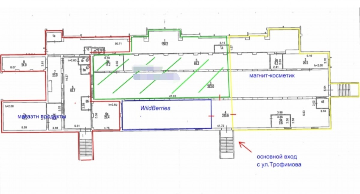
Адрес: Улица Трофимова д. 32 к. 1.
Общая площадь: 346 кв.м
Цена продажи: 50 000 000 р.
Цена за кв. метр: 144 508 р.
Высота потолков: 2,85 м.
Электрическая мощность: По запросу.
Вентиляция: Штатные вытяжка.
Безопасность: Пожарная сигнализация, видео наблюдение.
Тип планировки: Свободная зальная.
Вход в помещение: 1 вход с фасада и 1 вход в помещение (с разгрузки).
Отдельная зона разгрузки: Есть с грузовым лифтом.
Тип здания: Не жилое строение.
Формат помещения: Торговое помещение зальной планировки на цокольном этаже.
Формат окон: Маленькие вентиляционные.
Округ, район, метро: ЮВАО, район Южнопортовый, Ближайшие станции метро Кожуховская (3 мин. пешком)
Парковка: На улице не посредственно около объекта.
Назначение помещения: Торговое (свободное назначение)
Дополнительная информация:
- Возможность организации рекламы на фасаде здания
- Торговое окружение рядом: Пятёрочка, Аптека, магазин одежды, Dominos пицца, Магнит-Косметик и прочие предприятия торговли и услуг.
- Торговое окружение по соседству: "Wildberries", ОЗОН и Яндекс.
Дата размещения: 20.10.2025
Другие объекты
A PHP Error was encountered
Severity: Warning
Message: Invalid argument supplied for foreach()
Filename: search/RD_ad_page_tpl.php
Line Number: 356
Backtrace:
File: /var/www/primebro_com_usr/data/www/primebro.com/application/views/_redesign/search/RD_ad_page_tpl.php
Line: 356
Function: _error_handler
File: /var/www/primebro_com_usr/data/www/primebro.com/application/controllers/Search.php
Line: 402
Function: view
File: /var/www/primebro_com_usr/data/www/primebro.com/index.php
Line: 343
Function: require_once