2 000 000 ₽ в месяц
Категория
Торговая площадь
Хочу посмотреть
Предложить цену
Праймброком
8 (916) 335-2329
Описание
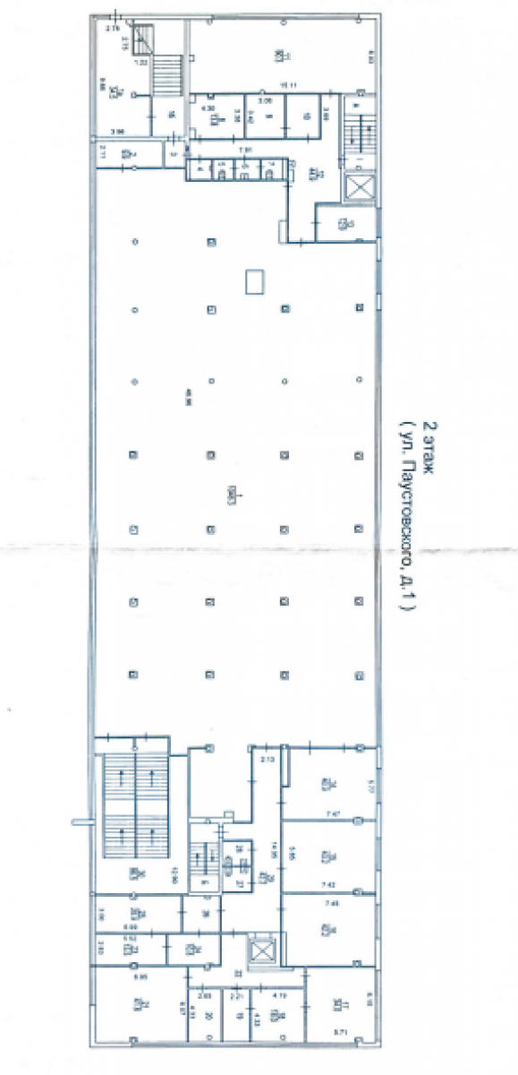
Сдается ПСН в ЮЗАО с отдельным входом, мокрой точкой под торговлю на 2м этаже в здании универмага. Возможно деление от 300м2
- 1 линия улицы, на оживленном перекрестке с проспектом.
- остановка городского автобуса - напротив входной группы универмага.
- пешком 7 минут от ст.м. Ясенево.
- с торца ворота и дебаркадер для погрузки/разгрузки.
- грузовой лифт.
- территория вокруг огорожена, в собственности.
- беспрепятственный подъезд к зоне разгрузки
- дополнительно есть складские площади
- есть оборудование в торговом зале, оно в идеальном состоянии.
- парковка городская, небольшая, есть еще одна - напротив через улицу.
На первом этаже несетевой супермаркет (гастроном, принадлежащий собственнику),
есть арендаторы в отдельными входами - аптека, нотариус, у входной группы в холле - цветы и упаковка подарков + ЯндексМаркет. Отличное техническое и физическое состояние здания!
Стоимость 2000/квадрат/месяц с эксплуатацией и НДС.
Идеально подойдет под Детские товары, Товары для дома, шоу-рум, школу танцев и др.
Дата размещения: 02.03.2026
Другие объекты
A PHP Error was encountered
Severity: Warning
Message: Invalid argument supplied for foreach()
Filename: search/RD_ad_page_tpl.php
Line Number: 356
Backtrace:
File: /var/www/primebro_com_usr/data/www/primebro.com/application/views/_redesign/search/RD_ad_page_tpl.php
Line: 356
Function: _error_handler
File: /var/www/primebro_com_usr/data/www/primebro.com/application/controllers/Search.php
Line: 402
Function: view
File: /var/www/primebro_com_usr/data/www/primebro.com/index.php
Line: 343
Function: require_once