Хочу посмотреть
Предложить цену
Анастасия
8 (925) 191-1912
Описание
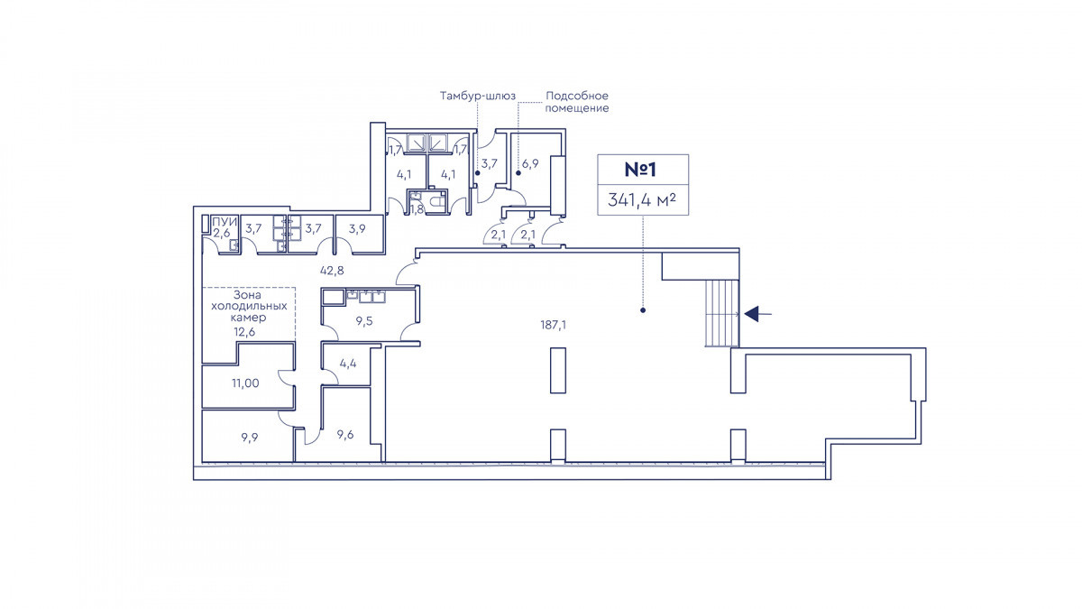
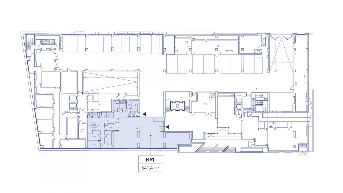
Помещение без отделки в бетоне, преимущественно под премиальный сегмент ритейла.
Долгосрочная аренда напрямую от собственника, без комиссии.
ЖК введен в эксплуатацию. Идет выдача ключей, апартаменты проданы с отделкой.
Высота потолков: 3,55 м
Помещение без окон.
2 Входа в помещение.
Вход открыт на территорию комплекса.
Мощность 75 кВт
Арендатором оплачивается электроэнергия, вода, отопление, СИТР, система пожарной безопасности.
Центральное кондиционирование, Приточно-вытяжная вентиляция.
Отличная транспортная и пешая доступность.
Дата размещения: 03.04.2026
Другие объекты
A PHP Error was encountered
Severity: Warning
Message: Invalid argument supplied for foreach()
Filename: search/RD_ad_page_tpl.php
Line Number: 356
Backtrace:
File: /var/www/primebro_com_usr/data/www/primebro.com/application/views/_redesign/search/RD_ad_page_tpl.php
Line: 356
Function: _error_handler
File: /var/www/primebro_com_usr/data/www/primebro.com/application/controllers/Search.php
Line: 402
Function: view
File: /var/www/primebro_com_usr/data/www/primebro.com/index.php
Line: 343
Function: require_once