Хочу посмотреть
Предложить цену
Праймброком
8 (916) 777-2090
Описание
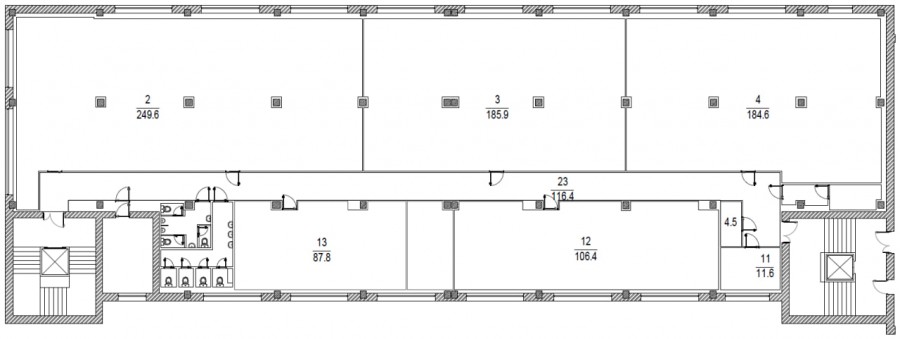
Продается помещение свободного назначения , площадью 973.6 м2. На 4 этаже.
Помещения с большими окнами, с современной качественной отделкой, сплит-системы кондиционирования. Круглосуточная охрана, наземная парковка.
Дата размещения: 16.03.2026
Другие объекты
A PHP Error was encountered
Severity: Warning
Message: Invalid argument supplied for foreach()
Filename: search/RD_ad_page_tpl.php
Line Number: 356
Backtrace:
File: /var/www/primebro_com_usr/data/www/primebro.com/application/views/_redesign/search/RD_ad_page_tpl.php
Line: 356
Function: _error_handler
File: /var/www/primebro_com_usr/data/www/primebro.com/application/controllers/Search.php
Line: 402
Function: view
File: /var/www/primebro_com_usr/data/www/primebro.com/index.php
Line: 343
Function: require_once