Хочу посмотреть
Предложить цену
Описание
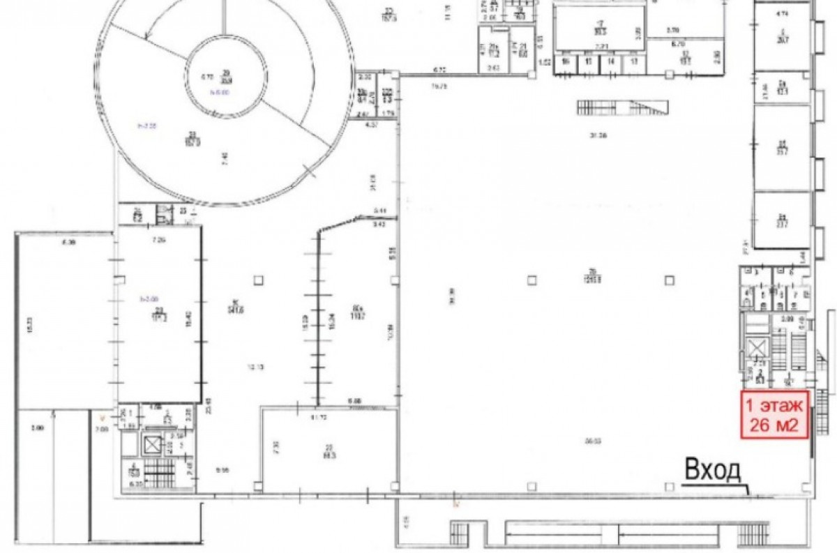
Сдается помещение свободного назначения общей площадью 1046,4 м2. Подходит для размещения автосервиса, детейлинга, а также возможно переустройство под офис или другой вид деятельности. Помещение оснащено пожарной сигнализацией и спринклерной системой пожаротушения. Доступ в помещение 24/7. Два пассажирских лифта. Заезд автомобилей до 7 этажа по заездной рампе (максимальная высота автомобиля 2,1 м). Оперативный показ по предварительной договоренности. В данный момент помещение используется под автосервис (рем. зона, покрасочная зона и вспомогательные помещения расположены на 7 этаже - площадь 1020,4 м2, зона приемки/ресепшн на 1 этаже - площадь 26 м2).
Дата размещения: 18.03.2026
Другие объекты
A PHP Error was encountered
Severity: Warning
Message: Invalid argument supplied for foreach()
Filename: search/RD_ad_page_tpl.php
Line Number: 356
Backtrace:
File: /var/www/primebro_com_usr/data/www/primebro.com/application/views/_redesign/search/RD_ad_page_tpl.php
Line: 356
Function: _error_handler
File: /var/www/primebro_com_usr/data/www/primebro.com/application/controllers/Search.php
Line: 402
Function: view
File: /var/www/primebro_com_usr/data/www/primebro.com/index.php
Line: 343
Function: require_once